公布日:2023.10.27
申請日:2023.08.29
分類號:C02F9/00(2023.01)I;C02F1/461(2023.01)N;C02F1/66(2023.01)N;C02F3/12(2023.01)N;C02F3/28(2023.01)N;C02F3/30(2023.01)N;C02F101/16(2006.01)N;
C02F101/30(2006.01)N
摘要
本發明提供了一種基于微電解-SRUSB-多級厭氧MBR-缺氧-好氧系統的廢水處理方法,該系統包括依次連通的微電解池、中間池、SRUSB-多級厭氧MBR反應池、缺氧池、好氧MBR池;該方法包括:在微電解池中將廢水的大分子有機污染物轉化為小分子,再進入中間池調節廢水溫度、pH、COD與SO42-濃度比,調節后廢水進入SRUSB-多級厭氧MBR反應池,去除廢水中有機污染物與硫酸根,廢水再進入缺氧池與好氧MBR池,去除廢水中的有機污染物與氨氮。本發明不僅能處理高濃度廢水,高效去除有機污染物,還節省曝氣量和能源。

權利要求書
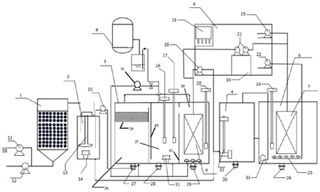
1.一種基于微電解-SRUSB-多級厭氧MBR-缺氧-好氧系統的廢水處理方法,其特征在于,采用微電解-SRUSB-多級厭氧MBR-缺氧-好氧系統進行廢水處理;所述微電解-SRUSB-多級厭氧MBR-缺氧-好氧系統包括依次連通的微電解池、中間池、SRUSB-多級厭氧MBR反應池、缺氧池和好氧MBR池;所述微電解池設有廢水進口;所述中間池用于調節廢水的溫度、pH值以及COD與SO42-的濃度比;所述SRUSB-多級厭氧MBR反應池由隔板分隔成若干依次連通的區域,沿水流方向的第一區域內放置有上流式硫酸鹽還原厭氧污泥床反應器,其余區域設置為多級厭氧MBR反應池;上流式硫酸鹽還原厭氧污泥床反應器的底部與中間池連通,多級厭氧MBR反應池與缺氧池連通;所述好氧MBR池的內部設有膜組件,膜組件上設有出水管;廢水處理方法,包括以下步驟:(1)將初始廢水泵入微電解池,進行微電解處理,獲得處理后的廢水I;(2)廢水I進入中間池中,調節廢水I的溫度、pH值和COD與SO42-濃度比,得到廢水II;(3)廢水II進入SRUSB-多級厭氧MBR反應池中,去除廢水中的有機污染物與硫酸根,得到廢水III;(4)廢水III泵入缺氧池中,再進入好氧MBR池,去除廢水中的有機污染物,并將廢水中的氨氮轉化為硝態氮,得到廢水IV;(5)廢水IV回流至缺氧池中,去除廢水中的硝態氮,再和廢水III混合得到廢水V;(6)廢水V進入好氧MBR池,循環步驟(4)-(5)直至廢水中有機物、氨氮含量達到設計要求,通過好氧池MBR膜組件過濾出水至清水池。
2.如權利要求1所述的廢水處理方法,其特征在于,所述SRUSB-多級厭氧MBR反應池內設有依次連通的上流式硫酸鹽還原厭氧污泥床反應器、一級厭氧池和內部設有膜組件的二級厭氧池;所述上流式硫酸鹽還原厭氧污泥床反應器與一級厭氧池之間設有底部開口的第一隔板;上流式硫酸鹽還原厭氧污泥床反應器頂部設有出水口,上流式硫酸鹽還原厭氧污泥床反應器的側壁與第一隔板之間形成水流通道。
3.如權利要求2所述的廢水處理方法,其特征在于,所述一級厭氧池和二級厭氧池之間設有上部開口的第二隔板;一級厭氧池頂部設有甲烷排氣口;所述二級厭氧池內膜組件的出水管分別設有與缺氧池連通的出水支管,與中間池連通的回流支管,以及與反洗裝置連通的反洗支管。
4.如權利要求1所述的廢水處理方法,其特征在于,步驟(1)中,所述初始廢水為咖啡因制藥廢水,COD濃度為1000~6000mg/L,SO42-濃度范圍150~3000mg/L,廢水中COD/SO42-濃度比2~6。
5.如權利要求1所述的廢水處理方法,其特征在于,步驟(1)中,所述微電解池內鐵碳體積比為1:1,廢水pH值為4~5,水力停留時間為2~4h。
6.如權利要求1所述的廢水處理方法,其特征在于,步驟(2)中,所述中間池的廢水溫度為32~35℃,pH值調節6.5~7.2,廢水中COD/SO42-濃度比2~6。
7.如權利要求1所述的廢水處理方法,其特征在于,步驟(3)中,SRUSB-多級厭氧MBR池水力停留時間為24~32h,SRUSB污泥濃度為4~10g/L,廢水COD/SO42-濃度比在2~6,所述多級厭氧MBR反應池的廢水pH值為6.5~8.5,溫度為32℃,厭氧MBR池回流比100%~200%,所述厭氧池污泥質量濃度為3~8g/L。
8.如權利要求1所述的廢水處理方法,其特征在于,步驟(4)中,所述缺氧池內部設有攪拌器,底部設有排泥口,缺氧池中廢水的pH值為7.0~8.5,運行溫度條件為室溫。
9.如權利要求1所述的廢水處理方法,其特征在于,步驟(5)中,所述好氧MBR池內廢水pH值為6.5~8.5之間,運行溫度條件為室溫。
發明內容
本發明提供了一種基于微電解-SRUSB-多級厭氧MBR-缺氧-好氧系統的廢水處理方法,該循環反應系統不僅可以穩定高效去除高濃度廢水有機污染物,同時還可以節省曝氣量和能源。
具體技術方案如下:
本發明提供了一種基于微電解-SRUSB-多級厭氧MBR-缺氧-好氧系統的廢水處理方法,采用微電解-SRUSB-多級厭氧MBR-缺氧-好氧系統進行廢水處理;
所述微電解-SRUSB-多級厭氧MBR-缺氧-好氧系統包括依次連通的微電解池、中間池、SRUSB-多級厭氧MBR反應池、缺氧池和好氧MBR池;
所述微電解池設有廢水進口;所述中間池用于調節廢水的溫度、pH值以及COD與SO42-的濃度比;所述SRUSB-多級厭氧MBR反應池由隔板分隔成若干依次連通的區域,沿水流方向的第一區域內放置有上流式硫酸鹽還原厭氧污泥床反應器,其余區域設置為多級厭氧MBR反應池;上流式硫酸鹽還原厭氧污泥床反應器的底部與中間池連通,多級厭氧MBR反應池與缺氧池連通;所述好氧MBR池的內部設有膜組件,膜組件上設有出水管;
廢水處理方法,包括以下步驟:
(1)將初始廢水泵入微電解池,進行微電解處理,獲得處理后的廢水I;
(2)廢水I進入中間池中,調節廢水I的溫度、pH值和COD與SO42-濃度比,得到廢水II;
(3)廢水II進入SRUSB-多級厭氧MBR反應池中,去除廢水中的有機污染物與硫酸根,得到廢水III;
(4)廢水III泵入缺氧池中,再進入好氧MBR池,去除廢水中的有機污染物,并將廢水中的氨氮轉化為硝態氮,得到廢水IV;
(5)廢水IV回流至缺氧池中,去除廢水中的硝態氮,再和廢水III混合得到廢水V;
(6)廢水V進入好氧MBR池,循環步驟(4)-(5)直至廢水中有機物、氨氮含量達到設計要求,通過好氧池MBR膜組件過濾出水至清水池。
進一步地,SRUSB-多級厭氧MBR反應池內設有依次連通的上流式硫酸鹽還原厭氧污泥床反應器、一級厭氧池和內部設有膜組件的二級厭氧池;所述上流式硫酸鹽還原厭氧污泥床反應器與一級厭氧池之間設有底部開口的第一隔板;上流式硫酸鹽還原厭氧污泥床反應器頂部設有出水口,上流式硫酸鹽還原厭氧污泥床反應器的側壁與第一隔板之間形成水流通道。
SRUSB全稱為上流式硫酸鹽還原厭氧污泥床反應器,MBR為膜生物反應器。
本發明中,初始廢水首先通過水泵泵入微電解池中,微電解池內設有鐵碳混合填料,混合填料是由廢鐵屑和活性碳按一定比例混合燒制而成,廢水在微電解池中進行大分子有機污染物向小分子有機污染物的轉化,經過反應后的廢水進入中間池,廢水在中間池中通過加藥,控溫,保持廢水的pH與溫度在一定范圍內,處理后的廢水泵入SRUSB中,SRUSB內接種有硫酸鹽還原菌,硫酸鹽還原菌能夠以污水中的有機污染物為碳源和能源,將有機污染物轉化為二氧化碳,同時將硫酸鹽還原成硫化物,降低廢水中硫酸根和有機污染物濃度,SRUSB和多級厭氧MBR反應池間設有Z字型流道,二者通過Z字型流道相連,處理后廢水的經Z字型流道進入多級厭氧MBR反應池的一級厭氧池內,之后通過過水孔進入二級厭氧池,多級厭氧MBR反應池內接種有產甲烷菌,能夠將廢水中有機污染物降解,產生生物氣,處理后的廢水泵入缺氧池中,部分回流至中間池,缺氧池內反硝化細菌以污水中未分解有機物為碳源,將好氧池循環回流的硝酸根還原為氮氣去除,缺氧池處理后的廢水進入好氧MBR反應池中,好氧池中的好氧微生物輪蟲、鐘蟲、硝化菌等進行有氧呼吸,將廢水中的有機污染物轉化為無機物,氨氮轉化為硝態氮,處理后的廢水部分回流至缺氧池,剩余通過好氧池MBR膜組件過濾后排出。
進一步地,初始廢水為咖啡因制藥廢水,特征為有機物濃度高、可生化性差、含鹽量大,其中COD濃度為1000~6000mg/L,SO42-濃度范圍150~3000mg/L,廢水中COD/SO42-最佳濃度比在2~6之間。
進一步地,微電解池內鐵碳體積比為1:1,廢水pH為4~5,水力停留時間為2~4h;鐵碳混合填料是由廢鐵屑和活性碳按一定比例混合燒制而成,微電解池一側連接有進水管,另一側連接有出水管,進水管上連接有進水泵、氣泵。
進一步地,中間池的廢水溫度為32~35℃,pH值為6.5~7.2,廢水中COD/SO42-濃度比為2~6,中間池一側與微電解池出水管相連,另一側設有出水管,出水管通過進水泵與SRUSB-多級厭氧MBR反應池的SRUSB底部連接,中間池內設有加熱器、潛水攪拌器和加藥管,中間池還設有回流廢水進水口,回流廢水進水口與SRUSB-多級厭氧MBR反應池的多級厭氧MBR反應池上用于回流廢水的回流管相連。
進一步地,SRUSB-多級厭氧MBR反應池水力停留時間為24~32h,SRUSB污泥濃度為4~10g/L,硫酸鹽還原菌能夠以污水中的有機污染物為碳源和能源,將有機污染物轉化為二氧化碳,同時將硫酸鹽還原成硫化物,處理后廢水中COD/SO42-濃度比大于6,SRUSB-多級厭氧MBR反應池一側與中間池出水管相連,另一側與缺氧池相連,SRUSB上方設置有填料板。
作為優選,SRUSB-多級厭氧MBR反應池內,SRUSB通過Z字型流道與多級厭氧MBR反應池相連。
進一步地,多級厭氧MBR反應池的廢水pH值為6.5~8.5,溫度為32℃,多級厭氧MBR池內產甲烷菌能夠將污水中的有機污染物降解,轉化為生物氣,產生的生物氣大部分由氣泵抽吸泵入SRUSB-多級厭氧MBR反應池底部循環曝氣,剩余部分通入氣體收集罐收集回用,厭氧MBR池回流比為100%~200%,出水pH值為7.6~8.5,厭氧污泥濃度為3~8g/L,多級厭氧MBR反應池分為一級厭氧池與二級厭氧池,二者通過過水孔相連,一級厭氧池內部連接有溫度計、潛水攪拌器、加熱器和加熱管;二級厭氧池內設有MBR膜組件,液位計,膜組件的上方連接有MBR出水管,多級厭氧MBR反應池還設有回流廢水出水口,通過回流管道與中間池回流廢水進水口相連,膜組件下方設有曝氣頭,連接生物氣循環曝氣管;多級厭氧池上方設有剩余生物氣收集管,與氣體收集罐相連。
進一步地,缺氧池內部設有攪拌器,底部設有排泥口,定時排泥,反硝化細菌以污水中未分解的含碳有機污染物為碳源,將好氧池內通過內循環回流進來的硝酸根還原為氮氣而釋放,缺氧池中廢水的pH值為7.0~8.5,運行溫度條件為室溫,缺氧池內部還設有回流廢水進水口與好氧MBR池用于回流廢水的回流管相連。
進一步地,好氧MBR池內廢水pH值為6.5~8.5之間,運行溫度條件為室溫,好氧微生物輪蟲、鐘蟲等進行有氧呼吸,將廢水中的有機污染物轉化為無機物,污泥中的硝化菌將氨氮轉化成硝態氮,好氧池內設有MBR膜組件、曝氣管、液位計、回流泵,回流泵上連接有回流管,回流管與缺氧池連通,曝氣管設置于好氧MBR池底部,池內曝氣管為L型,且等間距安裝有若干曝氣噴頭。
進一步地,微電解-SRUSB-多級厭氧MBR-缺氧-好氧系統還有廢水處理系統設備間,廢水處理系統設備間內設有PLC控制系統,反洗水箱,所述反洗水箱連接有反洗泵,反洗泵連接有反洗管,對好氧MBR池內MBR膜組件進行定期反洗,設有pH及溫度自動調控系統與厭氧池連接,將厭氧池內pH值和溫度控制在所需范圍內。
與現有技術相比,本發明具有以下有益效果:
本發明采用微電解池、中間池、SRUSB、多級厭氧MBR反應池、缺氧池、好氧MBR池的組合形式,不僅可以穩定高效去除高濃度廢水有機污染物,同時還可以節省曝氣量和能源。
(發明人:李熒;黃連芝;汪健樺;樊宇坤;馬敏杰)






